Villa unifamiliare via Monte Bolettone, Albavilla (CO)








NUOVA COSTRUZIONE VILLA G Via Monte Bolettone/Viale Brianza
Consegna prevista per gennaio 2027
In questo splendido terreno con vista sul Monte Bolettone e sulle Grigne, in posizione privilegiata a pochi minuti dal centro di Albavilla e a pochi metri della fermata dell’ autobus linea Como-Erba, ottima esposizione in un contesto di sole 7 ville proponiamo
VILLA INDIPENDENTE con ampio giardino e ampio terrazzo con fioriera al piano primo.
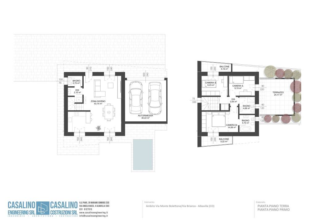
L’abitazione di una superficie complessiva di 205 mq si sviluppa su dei livelli abitativi:
al piano terra è situato un ampio soggiorno con aperture sul giardino (con possibilità di realizzazione di una piscina), le ampie vetrate conferiscono luminosità agli ambienti e consentono l’accesso al portico coperto, cucina a vista open space (con la possibilità di separarla dal soggiorno), bagno di servizio, lavanderia ed accesso diretto al box doppio in larghezza. Al piano primo si trovano tre spaziose camere da letto, di cui una matrimoniale con bagno privato, un secondo bagno e un ripostiglio, tutte le camere sono dotate di balcone, completa il piano un ampio terrazzo panoramico da 25 mq con fioriera.
Le ville saranno realizzate in classe energetica A4, dotate di cappotto termico esterno, ventilazione meccanica controllata, pompa di calore con pannelli fotovoltaici per riscaldamento a pavimento e produzione di acqua calda sanitaria, oltre alla predisposizione per l’impianto di aria condizionata a split.
È previsto un ampio capitolato per la scelta delle finiture interne e la possibilità di personalizzare la distribuzione degli spazi secondo le vostre esigenze.
Consegna prevista gennaio 2027
Vendita diretta senza agenzia.
CASALINO ENGINEERING SRL
info@casalinoengineering.it
tel. 0316127013
Piano: Piano terra
Superficie: 140,0 m²
Coefficiente: 100%
Tipo superficie: Principale
Sup. commerciale: 140,0 m²
Piano: Piano terra
Superficie: 36,0 m²
Coefficiente: 50%
Tipo superficie: Principale
Sup. commerciale: 18,0 m²
Piano: Piano rialzato
Superficie: 35,0 m²
Coefficiente: 30%
Tipo superficie: Principale
Sup. commerciale: 10,5 m²
Piano: Piano terra
Superficie: 415,0 m²
Coefficiente: 10%
Tipo superficie: Principale
Sup. commerciale: 41,5 m²
Fisso: +39 031 6127013
Mobile: +39 340 259 16 27
Mail: info@casalinoengineering.it
Sede Mariano Comense: Via Piave, 29 – 22066 Mariano Comense (CO)
Sede Albavilla: Via Angelo Bassi, 4 – 22031 Albavilla (CO)
Copyright 2024 Casalino Engineering | Partita IVA 03951100134 | Powered by Komunicando | Privacy Policy & Cookie Policy